1 引 言
重庆现有水泥生产企业大部分水泥厂都是机立窑生产。长期以来,因为资金、技术等原因,部分机立窑水泥生产线的环保问题一直未得到很好的解决。随着GB4915-2004《水泥工业大气污染物排放标准》的实施以及2008水泥生产许可证换发工作的开展,机立窑水泥生产线的粉尘治理已成为水泥企业的头等大事。
2 收尘设备现状分析
据调查,重庆现有机立窑水泥生产企业所建环保收尘设备大多在2000年以前建设的,所选设备一般为LHF型回转反吹扁袋除尘器,JH型高压静电除尘器,UF型振动单机袋式除尘器及部分脉冲袋式除尘器。这些设备的排放浓度在当时能基本满足国家环保排放标准。但随着GB4915-2004标准的实施,机立窑生产线和旋窑生产线采用同样的排放标准,并不受项目建设时间的限制。所以现有收尘设备很难满足新的排放标准。同时,这些设备维护困难,检修不变,不少设备形同虚设。如果将这些设备推倒,重新购买新型脉冲袋式除尘器,一方面投资较大,另一方面受到现有场地的束缚。对此,我们探索出了一条将旧除尘设备更新改造为新型脉冲袋式除尘器的有效途径,并在重庆华能石粉有限责任公司,重庆拉法基水泥有限公司,綦江县赶水水泥有限责任公司,广安腾辉水泥有限公司等企业得到了实施。通过改造,这些设备不但使用维护方便,而且还能达到增产达标的效果。
3 收尘设备改造思路
3.1、JH型高压静电除尘器的改造
由于当时技术和观念上的原因,很多立窑水泥线的生料磨,水泥磨,烘干机,破碎机等均安装了高压静电除尘器。经过多年的运行,结合现行环保排放标准,这些高压静电除尘器不能满足生产及环保要求。因此有必要将之改造为高效脉冲袋式除尘器。对于粉磨系统,改造后还会提高磨机台时产量。其基本思路为:
3.1.1、保留现有静电除尘器外壳,撤除高压电源,阴极线,内筒,振打机构,筒体顶板等;
3.1.2、新增高品质的滤袋,袋笼,多孔板,顶板,检修门,气包,脉冲阀,喷吹管及程序控制仪;
3.1.3、新增压缩空气气源;
3.1.4、重新核对引风机全压,更换风机或风机配套的电机。
3.2、LHF回装反吹袋式除尘器的改造
LHF回装反吹袋式除尘器是我国于80年代初从日本引进的技术。在使用和维护上,该设备主要问题是:①运动部件多,出问题的地方多;②滤袋为扁袋,与多孔板的密封不好,漏风大;③顶盖旋转部分天长日旧容易锈蚀,旋转换袋十分困难,甚至不能换袋;④清洁室较低,检修在设备内,维护难度大;⑤反吹风机弱力清灰,清灰效果差,造成设备阻力高,除尘系统风量偏小,甚至除尘系统瘫痪。在排放方面,该设备的排放浓度一般高于200mg/Nm3,甚至达到1g/Nm3以上。这些设备有必要将之改造为高效脉冲袋式除尘器。其基本思路为:
3.2.1、撤出除尘器顶盖,反吹风机,减速电机,旋背装置,花板,滤袋,骨架等;
3.2.2、保留除尘器壳体,灰斗,卸料器;同时改变进风口涡壳;
3.2.3、改变含尘气体进风口,进风口改为灰斗进风,出风口不做改变;
3.2.4、新增圆形滤袋,圆形多孔板,袋笼,气包,脉冲阀,喷吹管,顶盖,检修门和程序控制仪;
3.2.5、新增压缩空气气源装置,引风机可根据情况不做变更。
3.3、UF型振动单机袋式除尘器的改造
UF单机袋式除尘器也是我国于90年代初从美国富乐公司引进的技术,在很多新建水泥厂的小型产尘源上得到应用。但在实际使用中有很多问题,主要表现在:①清灰为摇动电机振打清灰,清灰时会产生二次杨尘;②清灰摇动时,经常将滤袋从多孔板上摇脱,造成冒灰现象;③换袋在设备内部,检修环境非常恶劣;④过滤速度快,排放浓度大于100mg/Nm3。因此有必要将之改造为高效脉冲袋式除尘器。改造思路同上。
3.4、PMD脉冲袋式除尘器的改造
PMD脉冲袋式除尘器是2000年左右出现的新型设备。其主要特点是从设备侧部换袋,但在实际使用中,换袋检修十分不便,有必要将之改造为顶部换袋的高效脉冲袋式除尘器。基本思路是:
3.4.1、保留原有除尘器外壳,引风机系统,气包和脉冲阀;
3.4.2、撤出原有滤袋,袋笼,花板,喷吹管及顶盖;
3.4.2、新增圆形滤袋,袋笼,圆形多孔板,喷吹装置,顶盖及检修门。
3.5、改造后的高效脉冲袋式除尘器的特点
上述低效的除尘器改造为高效的脉冲袋式除尘器,具有如下特点:
3.5.1、滤袋与多孔板的密封性能好,基本上不漏风,能保证100%的粉尘经过滤袋过滤,其排放浓度小于30mg/Nm3;
3.5.2、换袋在设备顶部,设备所有维护检修均在设备外部,检修维护非常方面;
3.5.3、由于滤袋过滤速度适应性强,可以提高系统风量,如粉磨系统改造,可加强磨内通风,从而提高磨机台时产量;
3.5.4、清灰为压缩气体强力清灰,清灰效果好,设备阻力能维持在1200-1500Pa范围内,系统阻力波动小,收尘系统运行稳定。
4 收尘设备改造的典型案例
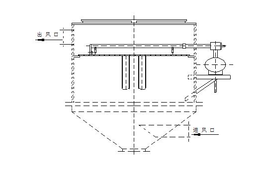
4.1、重庆华能石粉LHF340回转反吹扁袋除尘器改造
重庆华能石粉有限责任公司是珞璜电厂的配套企业,主要生产脱硫用石粉。该单位的大型破碎机选用了一台LHF340回转反吹扁袋除尘器,其主要状况为:过滤面积为340m2,滤袋数量144条,滤袋长度3m。过滤室筒体直径为3530mm。 处理风量23000m3/h。其进风为上部进风,含尘气流直接冲刷滤袋,造成滤袋容易破损,清灰方式为反吹风,清灰效果差,导致设备运行效果差。该单位委托毕威环保公司改造后,经江津环境监测站监测,其排放浓度小于30mg/Nm3.
4.1.1改造示意图如下:
4.1.2改造所需材料为:
4.1.2.1、滤袋:296条,安德鲁公司产,正常使用寿命2年;
4.1.2.2、袋笼:296根,重庆毕威环保产,正常使用寿命6年;
4.1.2.3、脉冲阀:18只,上海产,正常使用寿命100万次;
4.1.2.4、程序控制仪:1台,重庆毕威环保产,正常使用寿命5年;
4.1.2.5、顶板部装1套,多孔板1套,检修门四套,喷吹管,连通管各18套
4.1.2.6、气源油水分离器1套。
4.1.3整台设备的改造投资:7.5万元。
4.2、綦江赶水水泥公司JH型高压静电除尘器改造
赶水水泥有限公司Ø1.83生料磨(带选粉机)配用一台Ø2100管式高压静电除尘器,其通风量小,收尘效果差。赶水水泥公司委托毕威环保公司将之改造为脉冲袋式除尘器后,其排放浓度小于30mg/Nm3,磨机台时产量提高到21-22吨。
4.2.1、改造示意图

4.2.2、改造所需材料
4.2.2.1、滤袋:88条,安德鲁公司产,正常使用寿命2年;
4.2.2.2、袋笼:88根,重庆毕威环保产,正常使用寿命6年;
4.2.2.3、脉冲阀:10只,上海产,正常使用寿命100万次;
4.2.2.4、程序控制仪:1台,重庆毕威环保产,正常使用寿命5年;
4.2.2.5、顶板部装1套,夺孔板1套,检修门四套,喷吹管,连通管各10套
4.2.2.6、气源油水分离器1套。
4.2.3整台设备的改造投资:6万元。
4.3、重庆拉法基水泥有限公司脉冲袋式除尘器改造
重庆拉法基水泥有限公司一线脉冲单机袋式除尘器选用河南产的PMD袋式除尘器。该设备使用维护困难,换袋不方便。重庆拉法基投资近30万元委托毕威公司对其中11台设备进行改造。目前,设备已经改造完毕,并通过了拉法基验收。
5、旧设备改造更新与新建脉冲袋式除尘设备的投资比较表(举例)
项 目 | LHF340扁袋除尘器(Q=2.3万m3/h) | JH2100高压静电除尘器(Q=2m3/h万) | PMD-7脉冲单机除尘器(Q=0.9万m3/h) | UF-5型单机除尘器(Q=0.6m3/h万) |
旧设备改造 | 7.5 | 6 | 2.5 | 2.2 |
新建设备 | 14 | 13 | 4.6 | 3.5 |